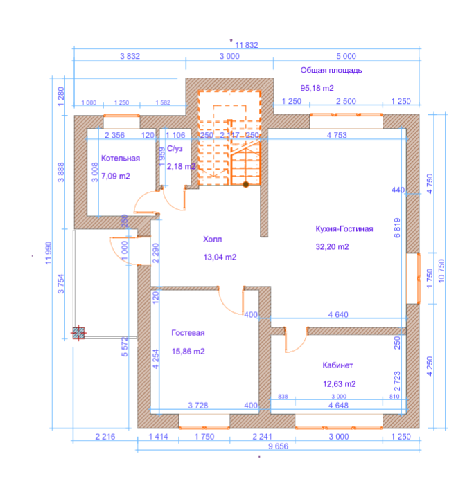
г. Волгоград, Дзержинский р-он, 2 эт дом 240 м2